Difúzor hliníka hliníka
Difúzor štvorcového stropu je vysoko konfigurovateľný s viacerými jadrovými štýlmi, vzormi prúdenia vzduchu a voliteľnými funkciami na prispôsobenie tohto produktu konkrétnym aplikáciám.
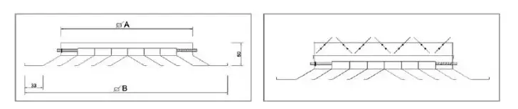
Koncentrovaný prietok vzduchu štvorcového stropu je vypustený z každej aktívnej strany difúzora, čo vedie k dlhším hodom, ktoré sú ideálne pre aplikácie s vysokým stropom.
Difúzor štvorcového stropu
1.Pusti alebo spiatočte vzduchové aplikácie
2. Zostavenie z extrudovaných hliníkových sekcií
3.RIGID, HLAVNÉ ZARIADENIE VYPRAVNÉ RÁMY SI SVOJEM
4.Vystudené a zvárané rohy
5. Špeciálne vzory sú k dispozícii
6. Spráca povrchová úprava, štandardná farba biela
7. Vyrábajte na požiadanie

Smerový difúzor s vysokou kapacitou, difúzory štvorcového stropu harmonicky miešajú s architektonickými detailmi a sú k dispozícii so širokou škálou štýlov rámu pre ľahkú integráciu s modulárnymi stropnými systémami.

Populárne Tagy: Difúzor štvorcových stropov, Čína, dodávatelia, výrobcovia, továreň, prispôsobené
